
Kozan Belediyesinden kırsala ücretsiz özel proje çizimi
Özgan, 5.5 büyüklüğündeki deprem sonrası kırsal mahallerdeki evlerin sağlıklı yapıya kavuşması için belediyenin ücretsiz olarak projelendirdiği 7 farklı "kırsal ev planlarından" vatandaşların ücretsiz olarak yararlanabileceğini bildirdi.
Adana Kozan Belediye Başkanı Kazım Özgan, 5.5 büyüklüğündeki deprem sonrası kırsal mahallerdeki evlerin sağlıklı yapıya kavuşması için belediyenin ücretsiz olarak projelendirdiği 7 farklı "kırsal ev planlarından" vatandaşların ücretsiz olarak yararlanabileceğini bildirdi.

Kozan Belediye Başkanı Kazım Özgan, kırsalda betonarme evlerde kullanılan malzemelerin kalitesizliği nedeniyle deprem gibi doğal afetlerle karşılaşıldığında büyük felaketlere yol açabileceğini kaydederek bu tür yapıların bir depremde yıkılması halinde, kaybedilecek canların bedelinin ödenemez olduğuna dikkat çekti.

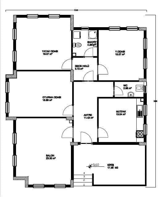
Kozan Belediyesi olarak kırsal mahallelerde bulunan 200 metrekareden küçük ticari olmayan yapılarda ve tapulu arsalarda proje çizim hizmetini ücretsiz bir şekilde sunulduğunu belirten Başkan Özgan, 7 farklı tip proje seçeneği ile vatandaşların sağlıklı yapılarda oturacaklarını ifade etti.

Vatandaşların ihtiyaç ve tercihlerine göre 60 metrekareden 200 metrekareye kadar değişen büyüklükteki ev projelerini çizdirmek için belediyeye başvurabileceğini kaydeden Özgan " Bu adımın, köylerde yaşayan vatandaşların güvenli ve dayanıklı yapılarla hayatlarını sürdürebilmesine önemli bir katkı sağlayacaktır. Köylerde yaşayan vatandaşların güvenli ve sağlam evlere kavuşmalarına yönelik büyük bir adım. Niteliksiz yapıların risklerin önüne geçmek için yapılan bu girişimin, deprem gibi doğal afetlerin yaşandığı bölgelerde önemli bir örnek teşkil etmesi bekleniyor. Köy halkının proje çizim hizmetinden faydalanarak evlerini güçlendireceği düşünüldüğünde, gelecekte yaşanabilecek depremlerin olumsuz etkilerin minimize edilmesini sağlayacaktır" dedi.



HABERE YORUM KAT
Türkçe karakter kullanılmayan ve büyük harflerle yazılmış yorumlar onaylanmamaktadır.